The Green Bean Cafe - Retail
Project: The Green Bean Cafe
Location: Lynchburg VA
area: 2100 Sq Ft
Completed: 2024
Budget: $75,000
Project Goals
Create a dramatic and unique atmosphere that reflects the eco-friendly brand
Incorporate natural materials and greenery throughout the space
Design Flexible seating options for both solo customers and groups
Maximize the use of natural light and create a warm ambiance with the lighting design
Ensure the cafe feels open and airy, even with the smaller square footage
Include a small retail area to sell sustainable products like reusable cups and eco-friendly snacks
Sherwin Williams - Moscow Midnight SW 9142
Tarkett - Ceramix PCMX Bella 10390 Flooring
This flooring offers a unique experience with artful expressions. Woven textiles and mathematical equations, each creative process begins as a question in the creator’s mind. Mixing the Bella Flooring with the Slate ESL Rock Ridge 11197 to divide the spaces.
Tarkett - Slate ESL Rock Ridge 11197
Bar stool seating is essential in a café as it maximizes space, fosters a casual atmosphere, and encourages social interaction, making it ideal for quick visits or communal experiences. Additionally, it offers flexibility in layout, enhances views for patrons, and efficiently accommodates takeout customers.
Swivel chairs in a café make seating more comfortable and convenient by letting customers easily turn without moving the chair. This improves the dining experience and makes it easier to interact and enjoy the space.
Using AI as a fake client I was tasked with creating a cozy, friendly cafe focusing on a sustainable, plant-based food and beverages. The cafe aims to provide a relaxing and welcoming atmosphere where customers can unwind, enjoy a good meal, or work remotely.
The Target Audience was young professionals, eco-conscious consumers, and students as the location is in an up-and-coming neighborhood near a university.
I had set a budget of $75,000 for the entire project including furniture, lighting, decor, and any renovation work that needed to be done in the building.
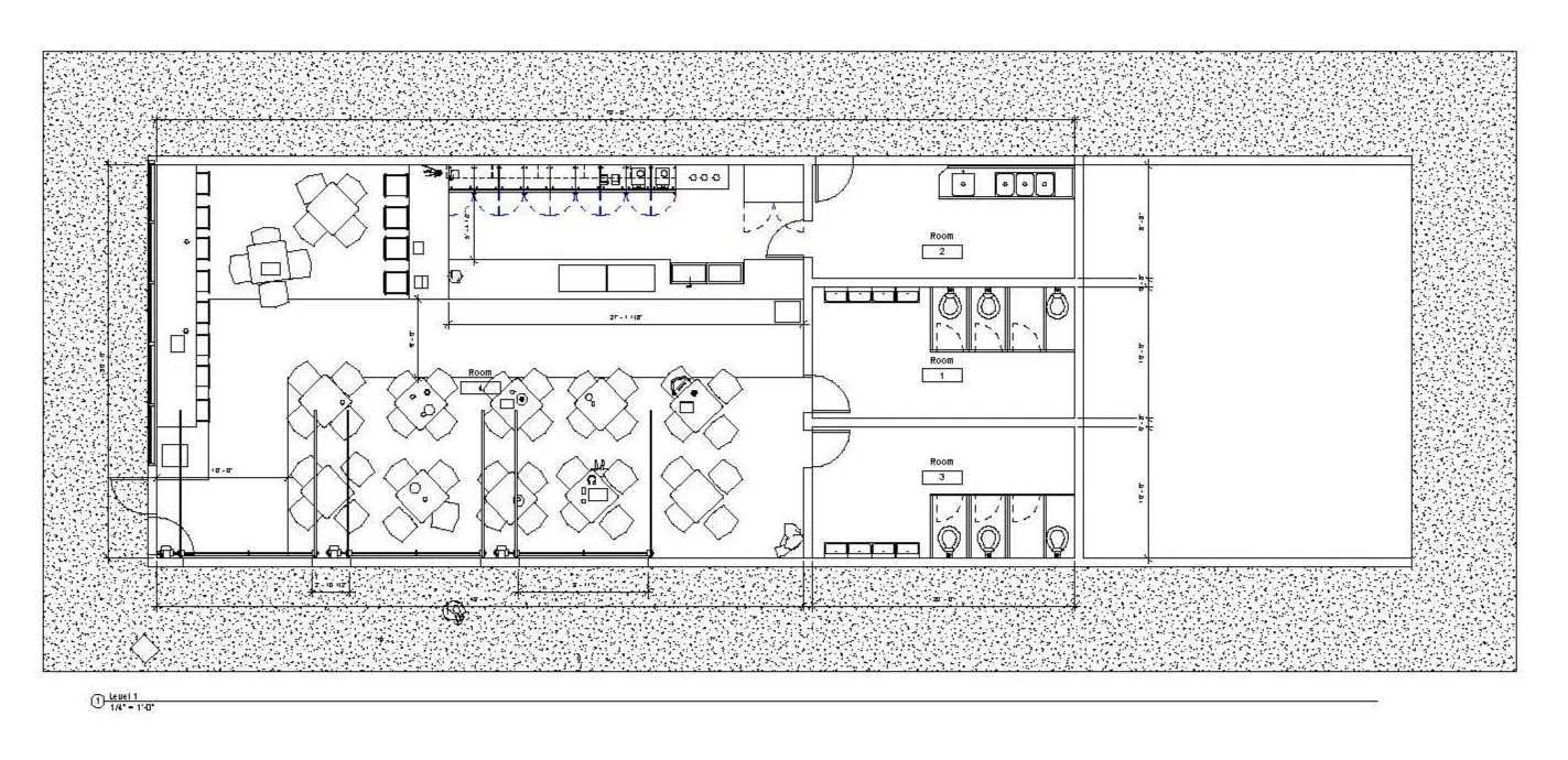
The building is 2100 Sq Ft with a kitchen area and two bathrooms. The West wall has large windows which would allow a cool space for some bar seating, and the South wall has three cargo-styled doors that make it a cool space to open the doors during the hotter days. All the glass will allow lots of natural light into the space and require less artificial lighting during the day.
Branding
In addition to the Interior Design of the space I also took on the role of graphic designer and created the branding. Everything from the logo, menu, recyclable cups, and coffee packaging with pontental growth to clothing.
