Project: Reynolds Family Home
Area:
Location: Vancouver, BC
Completed: 2024
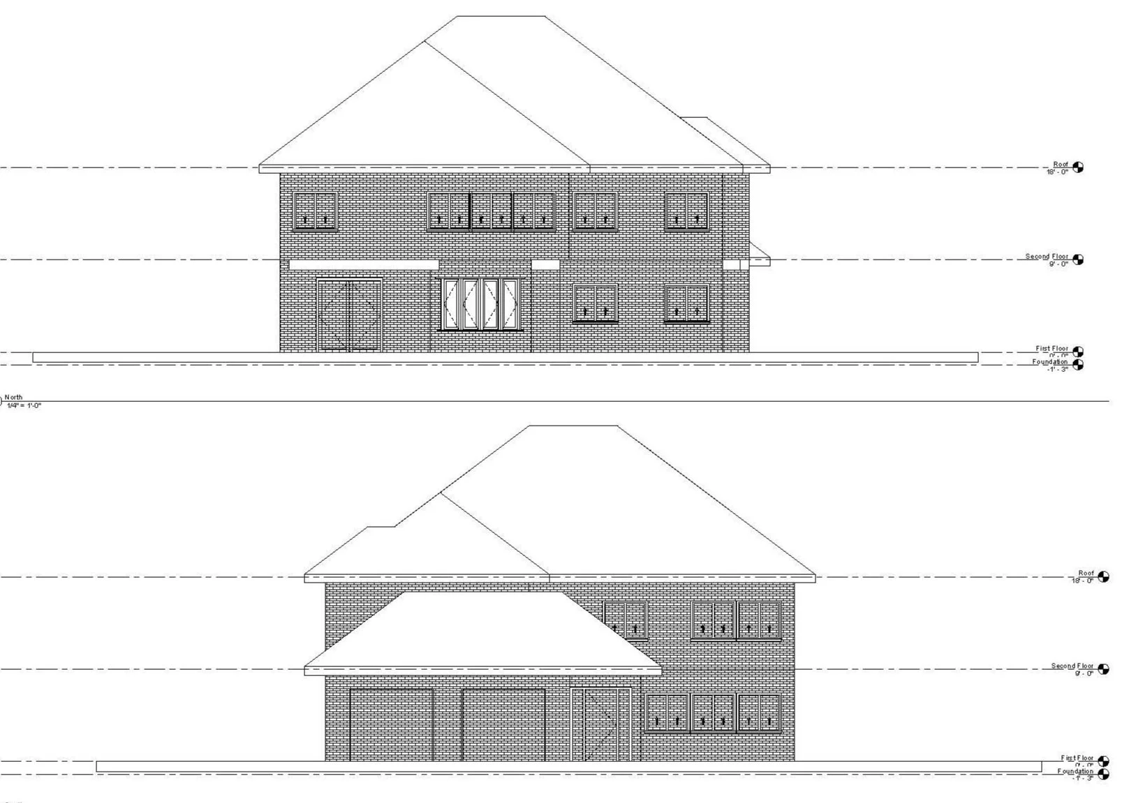
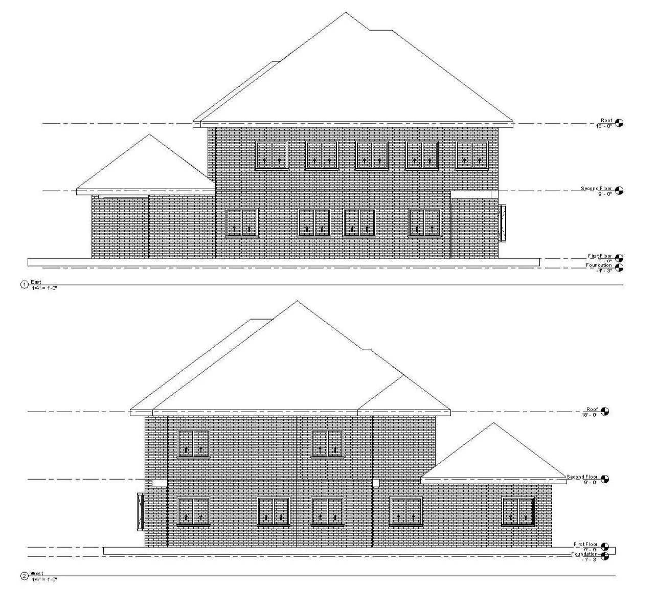
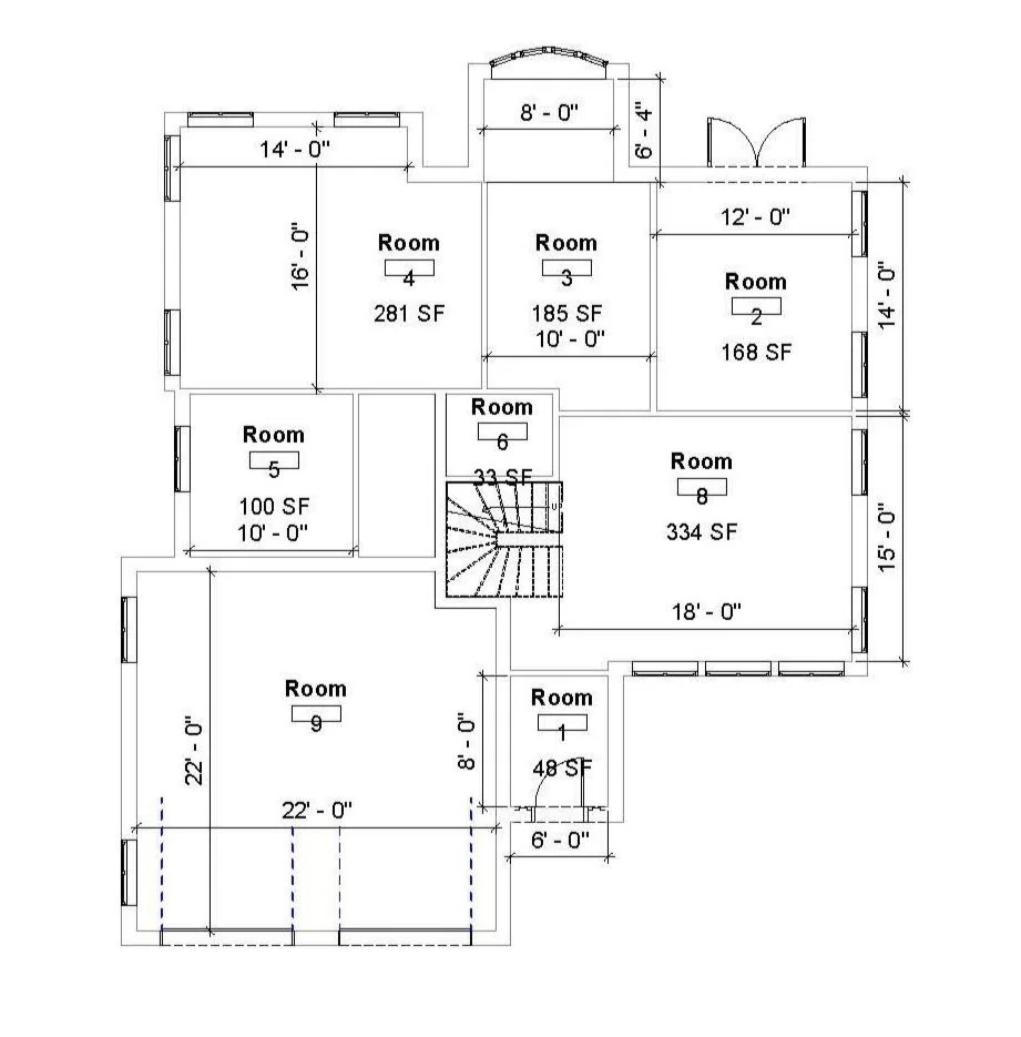
Located in the peaceful suburbs of Vancouver, BC, this project involved the complete transformation of a dated 1980s traditional-style house into a modern farmhouse with a touch of Scandinavian minimalism. The Reynolds family—a young couple with two children—wanted to modernize their home while enhancing its functionality and connection to the outdoors.
The design approach focused on opening up the main floor to create a seamless flow between the living, dining, and kitchen areas. With sustainability in mind, we incorporated eco-friendly materials and energy-efficient systems throughout the home. The project also included the redesign of the backyard into a vibrant outdoor living space that balances relaxation and entertainment, making it a true extension of the interior.
This renovation showcases the balance of warmth and simplicity, with carefully selected finishes and custom-built elements tailored to meet the family's current needs and future growth.
