SERENE ELEMENTS SPA
SERENE ELEMENTS SPA– CONCEPTUAL PROJECT
Completed: 2024
Size: 3,500 SF
The Serene Elements Spa is a luxurious, tranquil retreat designed to provide guests with an escape into "natural luxury." Drawing inspiration from Scandinavian minimalism and Japanese Zen, the spa blends clean lines, open spaces, and organic materials such as wood, stone, and water. The calming atmosphere is enhanced by a soft, neutral color palette with subtle accents of olive green, blush, and muted blues.
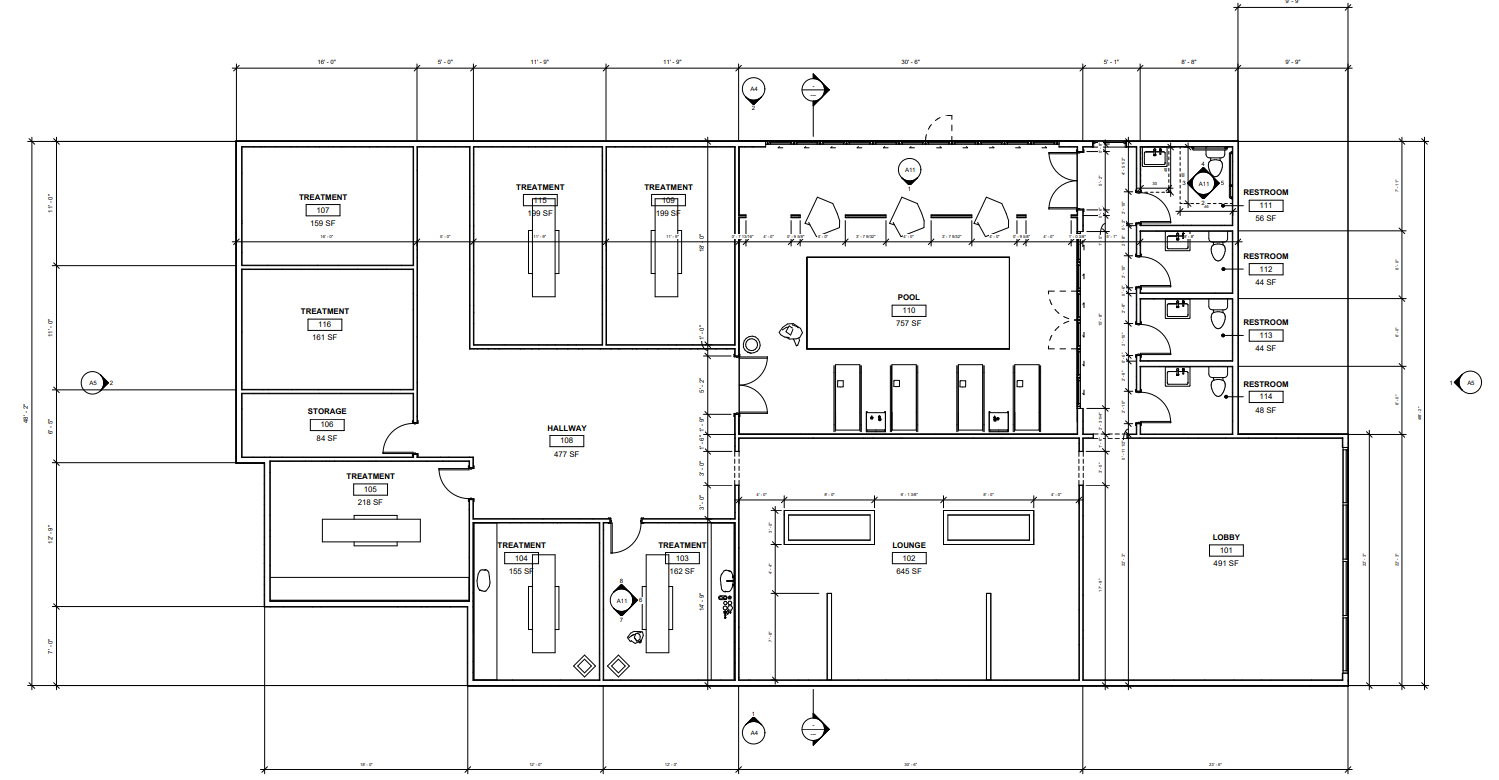
The spa spans 3,500 square feet, featuring a reception area, relaxation lounge, hydrotherapy zone, and five treatment rooms. Natural elements, eco-friendly materials, and thoughtful design details, such as a water feature and indoor plants, reinforce the serene and sustainable ambiance. Key areas, including a hydrotherapy pool and sauna, offer a nature-inspired escape while ensuring a sophisticated experience for guests.
Project Goals
Create a Tranquil Escape
Incorporate Natural Luxury
Seamlessly Blend Minimalism with Warmth
Foster Comfort and Sophistication
Maximize Functionality in Layout
Incorporate Sustainable Practices
Create a Calming Atmosphere
Enhance the Experience with Special Features
Lighting inspiration
This space showcases a calming, minimalist design with a strong emphasis on natural elements. The neutral tones of the walls and seating area create a serene backdrop, allowing the lush greenery to stand out. The use of various indoor plants, such as tall bamboo and broad-leaved species, brings nature into the space, contributing to a soothing and organic atmosphere. The soft lighting adds to the tranquil ambiance, with recessed lights subtly illuminating the room without overwhelming it and giving the space some circadian lighting.
This image showcases the hydrotherapy zone of the Serene Elements Spa, designed to offer a luxurious and peaceful experience. The space is centered around a heated pool, with elegant archways and large windows that allow natural light to filter in, creating a serene, open atmosphere.
Minimalist loungers line the pool, providing a space for guests to relax before or after their treatments. Each lounger is paired with a small side table, offering a functional yet sophisticated touch. Potted plants strategically placed around the pool area bring in elements of nature, adding to the overall calm and organic aesthetic of the spa. The neutral, warm tones of the walls and flooring contribute to the feeling of tranquility, complementing the natural light and creating a soft, soothing environment. The design is enhanced by the use of subtle, recessed lighting, ensuring a peaceful ambiance even as daylight fades. This space is not only designed for relaxation but also offers a connection to nature and luxury, aligning perfectly with the spa’s goal of providing a serene escape for its guests.
The built-in seating, with its light wood and curved design, enhances the space's flow, encouraging relaxation. The addition of stone-like stools reinforces the connection to natural materials. The soft textures and neutral colors further reflect a Scandinavian minimalism style, combining simplicity and functionality.
To elevate the sensory experience, a waterfall feature adds the calming sound of flowing water, enhancing the overall peaceful retreat atmosphere. This natural element integrates seamlessly with the greenery, creating a holistic environment perfect for unwinding and relaxation.
This treatment room is designed to offer an intimate and calming experience, with an emphasis on warmth and natural elements. The rich, earthy tones of the walls create a welcoming and grounded atmosphere, providing a sense of comfort for guests. A minimalist massage table is the focal point, surrounded by clean, simple lines that enhance the room's serene aesthetic.
To add a touch of nature, a vertical greenery installation serves as a biophilic feature, bringing the outdoors inside and promoting a tranquil ambiance. The custom shelving offers a practical yet understated space for spa products, maintaining the clean and uncluttered design.
Natural light filters in through a window, offering a soft view of the landscape outside, further enhancing the peaceful, nature-inspired atmosphere of the room. This harmonious blend of warm tones, greenery, and natural lighting creates an ideal space for relaxation and rejuvenation.

